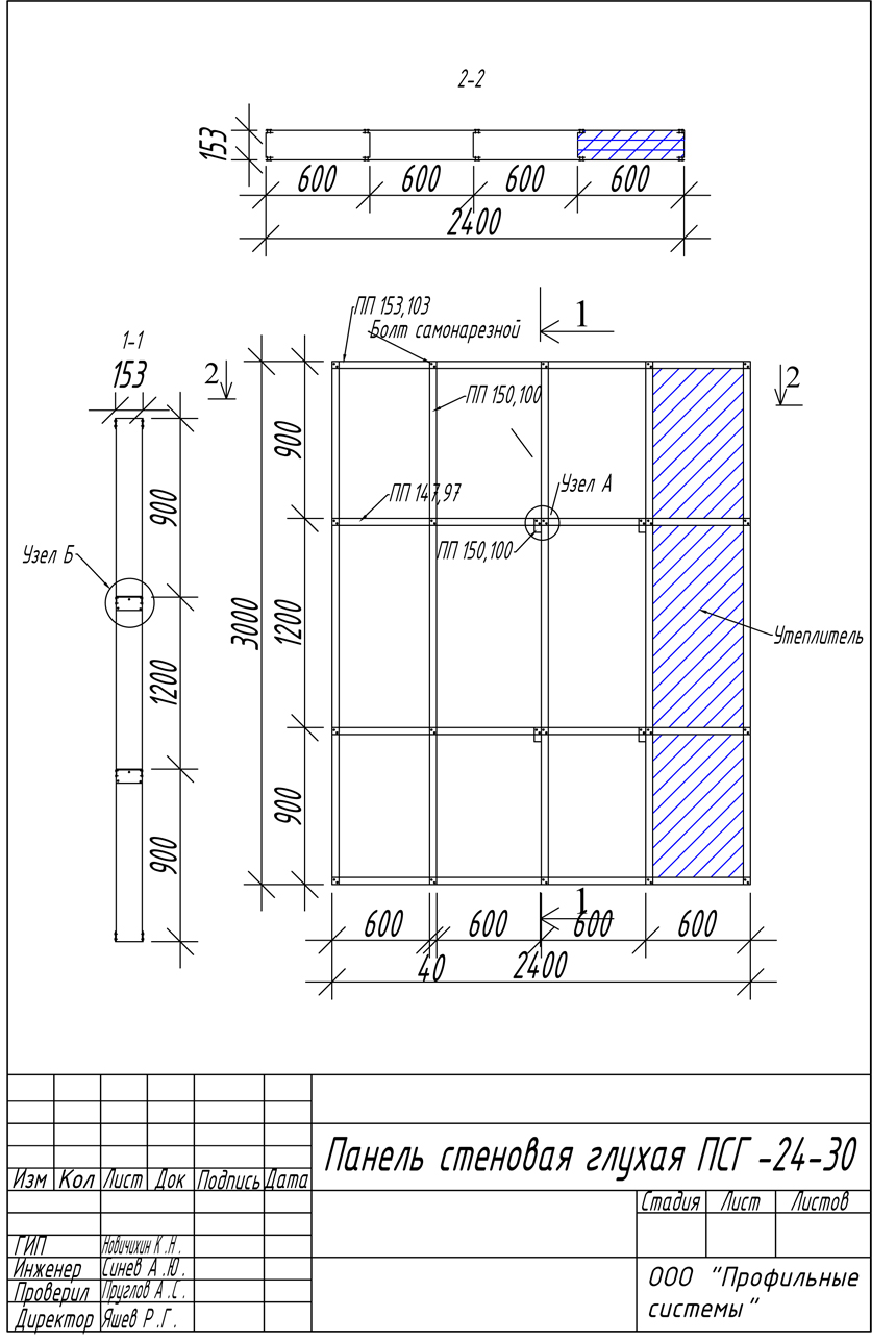
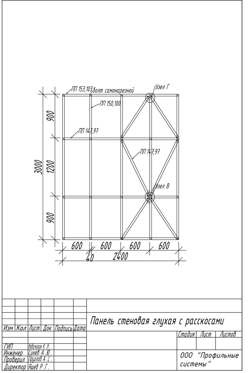
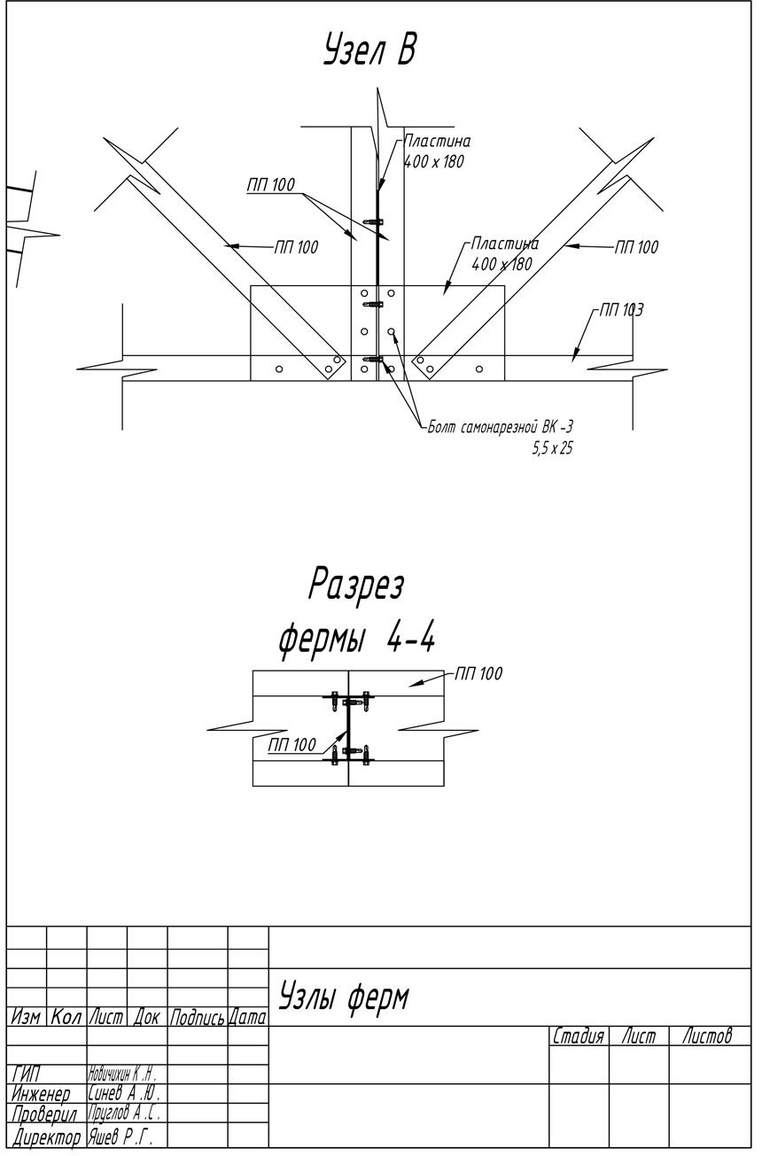
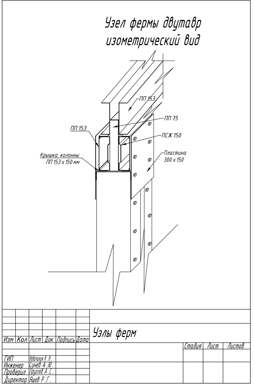
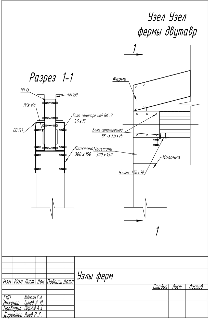
Данная пояснительная методичка разработана специально для наших партнёров (покупателей) занимающихся каркасным строительством лёгких стальных тонкостенных конструкций.



















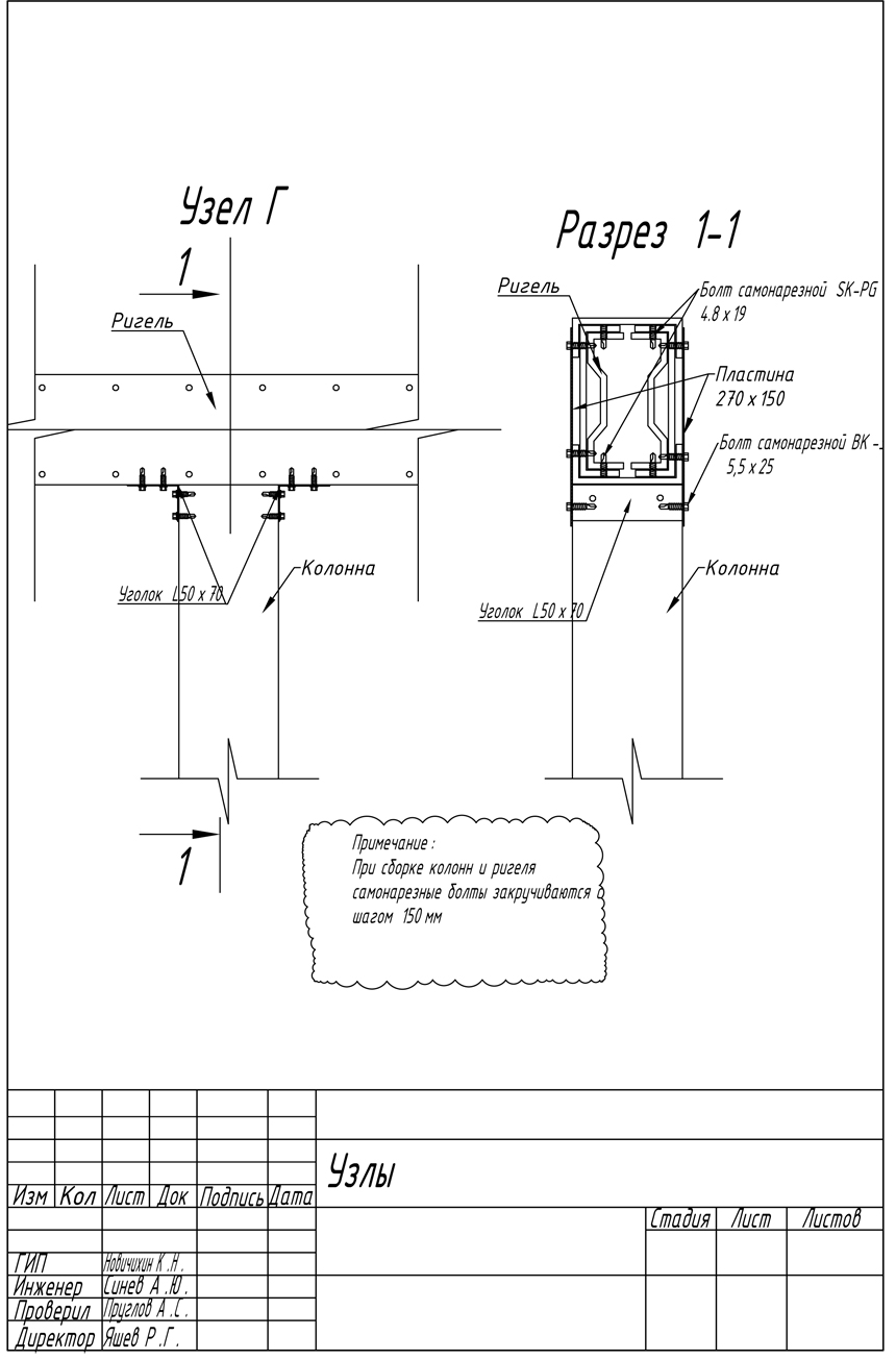
Данная пояснительная методичка разработана специально для наших партнёров (покупателей) занимающихся каркасным строительством лёгких стальных тонкостенных конструкций.



















Оставьте ваши контактные данные, и наш менеджер свяжется с вами в течение нескольких минут