Каркасный дом из ЛСТК
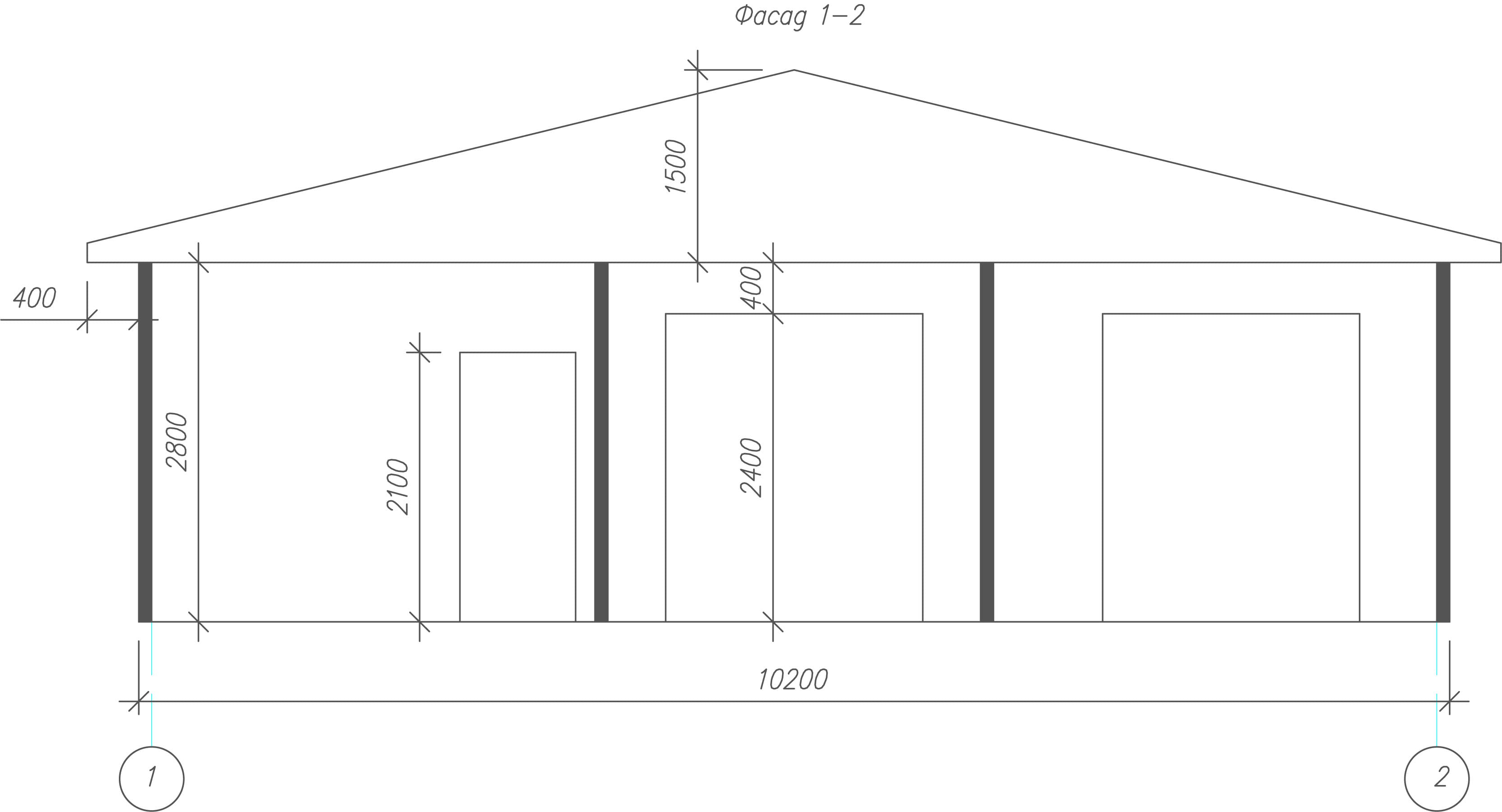
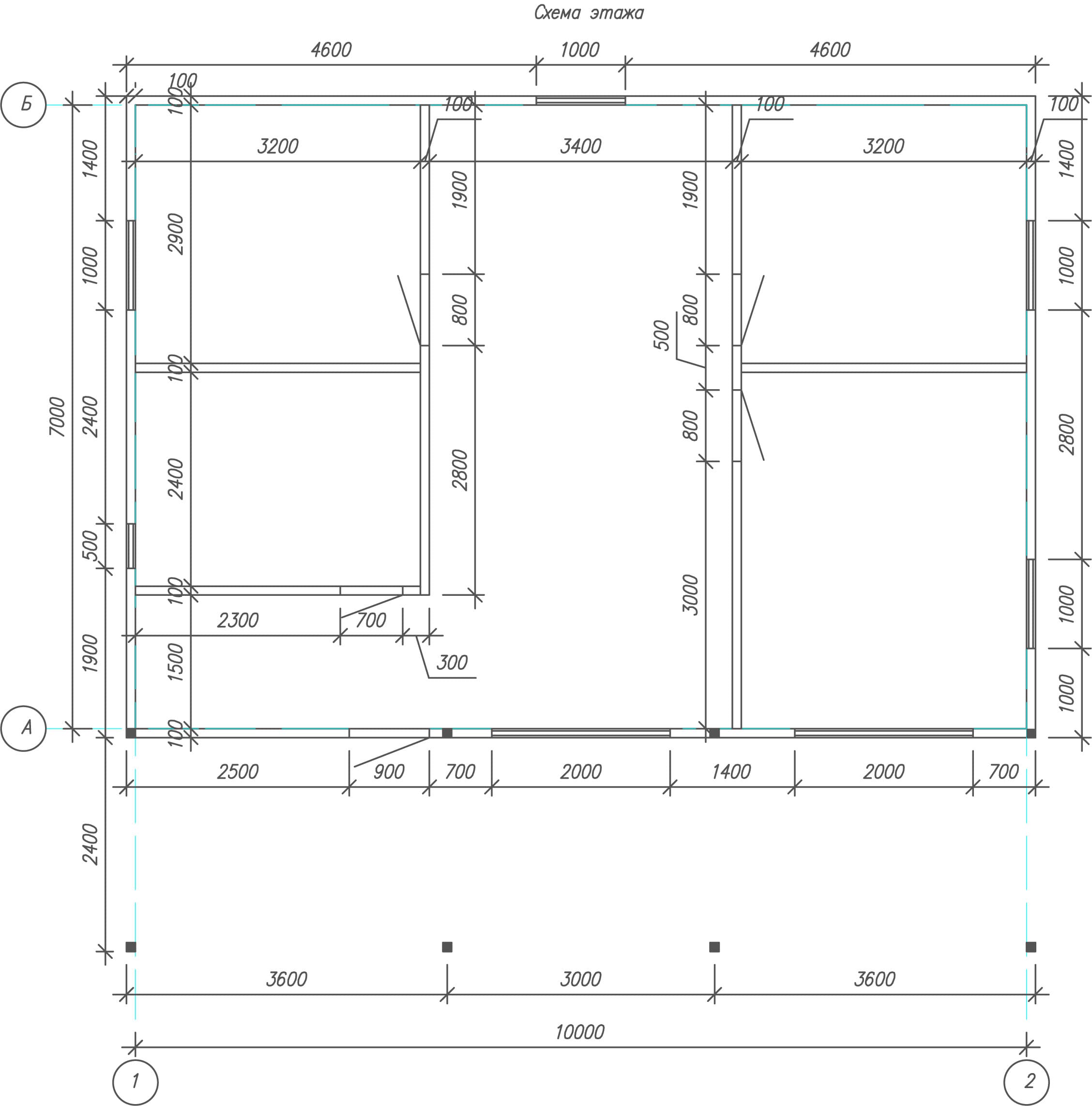
Здание размерами в плане 7 на 10 метров + навес 2,5 на 10 метров
Стены наружные и внутренние шириной профиля 100 мм
Кровля двускатная по фермам
Обрешёточный профиль просчитан на кровлю с шагом 400 мм
Металлокаркас ЛСТК 1 807, 3 кг
Орешётка шляпным профилем ПШ40 426 м.п.
Винтов самонарезающих 8 500 штук
Заявку на расчёт стоимости ваших метражей оставляйте на lstkrf@mail.ru

