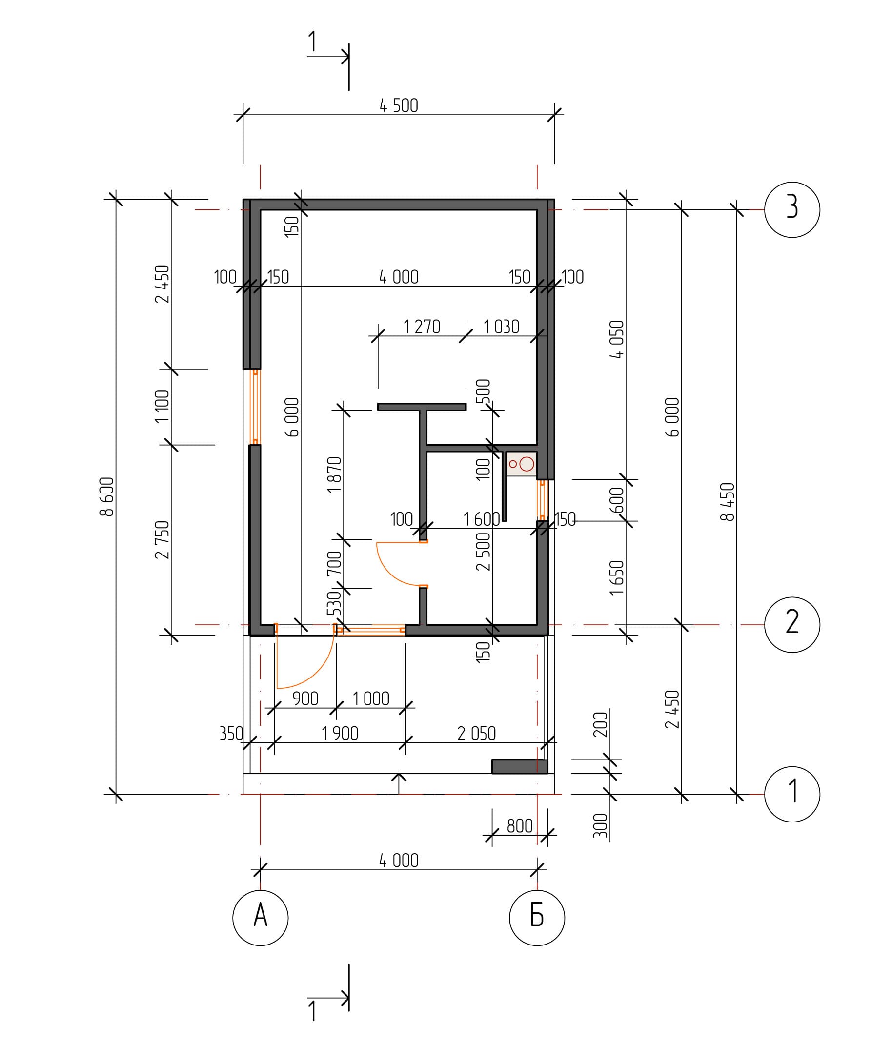
Небольшой каркасный дом с террасой. ЛСТК каркас из оцинкованных профилей: ПП150/1.5 (19 м.), ПП100/1.2 (144 м.), ПП150/1.2 (260 м.), ПП75/1.5 (122 м.), ПСЖ150/1.5 (19 м.), пластины соединительные 150*300 (1 м.), уголок 50*70 (24 м.); общий вес конструкции с обрешёткой кровли ПШ40 (78 м.) составляет 1 234, 26 кг. На сборку здания требуется 4 500 шт. винтов самонарезающих. Для заказа такого дома оставьте запрос (контактные данные на странице "Контакты").

