
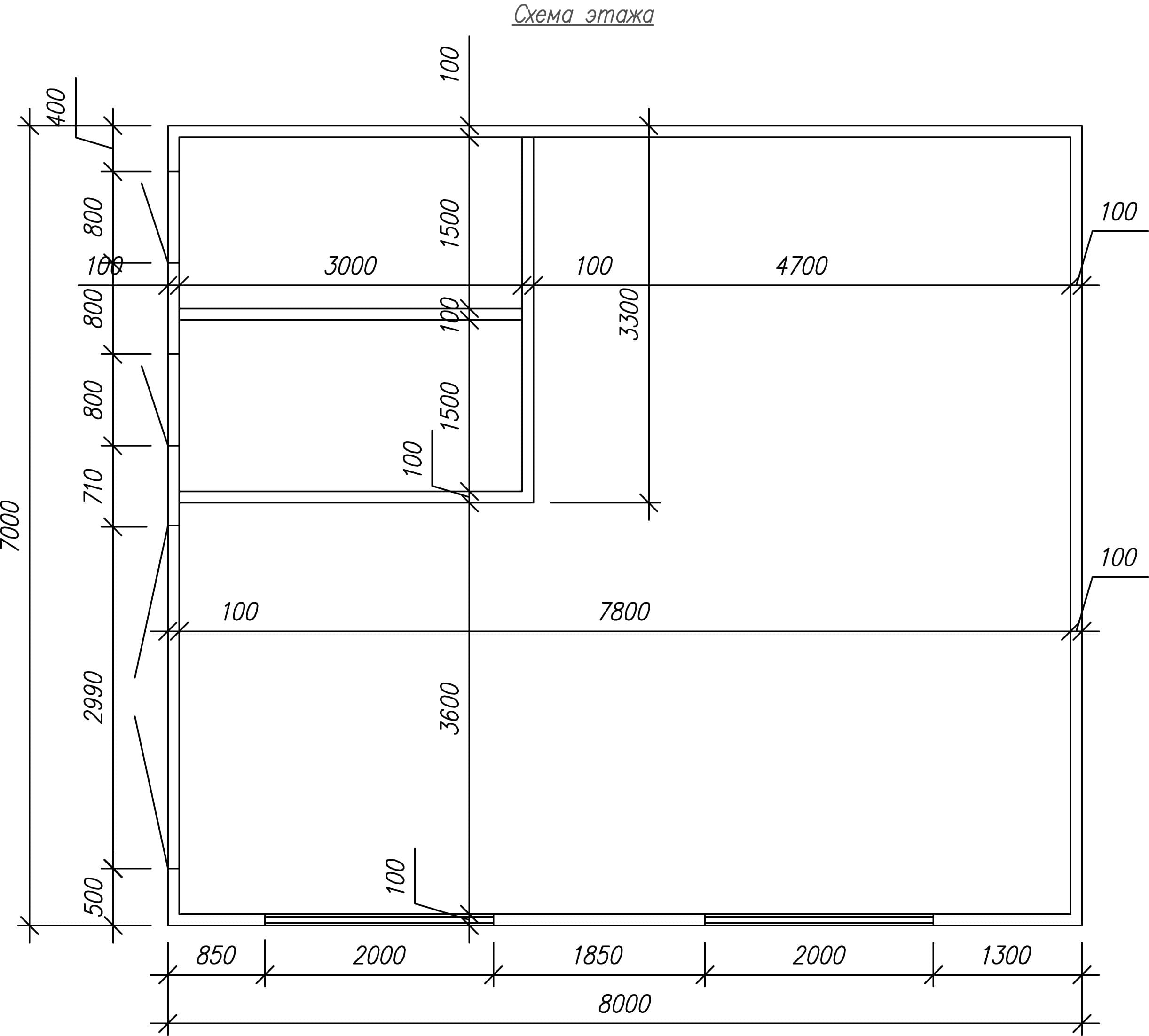
Гараж из ЛСТК размерами 7х8 м.
Стены шириной профиля 100 мм.
Кровля двускатная со смещенным коньком.
Часть кровли выполнена фермами, часть кровли — стропила.
Обрешёточный профиль рассчитан на кровлю и две глухие стены, шаг 600 мм.
Заинтересовал проект? ЗВОНИТЕ!