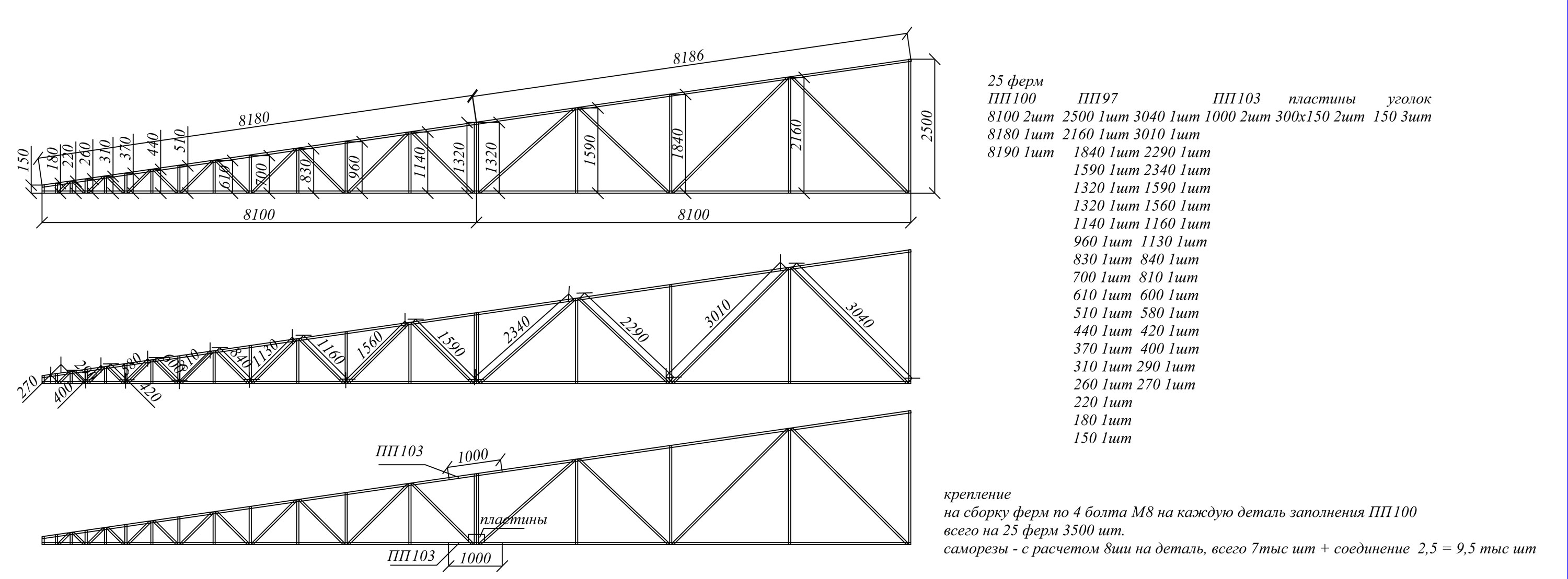
Для каждого объекта строительства мы подготавливаем сборочные чертежи, представленного ниже, образца:





Для каждого объекта строительства мы подготавливаем сборочные чертежи, представленного ниже, образца:





Оставьте ваши контактные данные, и наш менеджер свяжется с вами в течение нескольких минут